1823 Bellwood, Cameron Village, Raleigh
More Pictures  1  2  3  4  5  6  Other Properties

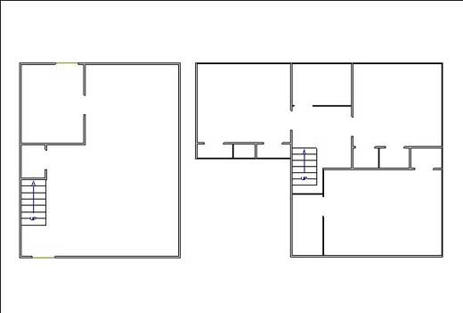
FIRST FLOOR
SECOND FLOOR


The Third bedroom extends over the first floor of the adjacent unit
allowing for larger upstairs rooms.

 

www.peterRumsey.com "Sells the Triangle" rumsey@mindspring.com (919) 971-4118